Мусоросбросы















































Часто ищут
Мусоросбросы: удобное решение для строительства
Мусоросбросы — это необходимое оборудование на любой строительной площадке, где ведутся высотные работы. Их основная задача — безопасное и быстрое удаление строительного мусора с верхних этажей здания. Использование мусоросбросов значительно сокращает время уборки и минимизирует риск травм, связанных с перемещением строительного мусора вручную.
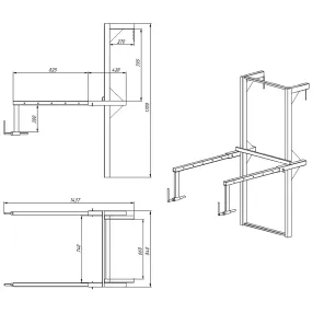
Мусоросбросы строительные состоят из нескольких секций, которые легко соединяются между собой, образуя прочную и надежную конструкцию. Одним из важных элементов системы является прямая секция мусоросброса, обеспечивающая равномерное прохождение мусора по всей длине. Также в состав системы могут входить дополнительные элементы, такие как крепления и переходные секции, что позволяет адаптировать мусоросброс под конкретные условия объекта.
Преимущества использования пластиковых мусоросбросов
Пластиковые мусоросбросы набирают популярность благодаря своим характеристикам. Они легки в установке, устойчивы к ударам и вибрациям, что делает их долговечными. Прочный пластик обеспечивает устойчивость к воздействию атмосферных явлений, что особенно важно при использовании на улице. Кроме того, пластиковый мусоросброс легко очищается, не ржавеет и не требует дополнительного ухода.
- мусоросброс строительный из пластика удобен для многоэтажных строек;
- прямая секция мусоросброса обеспечивает надежное скольжение мусора;
- мусоросброс пластиковый долговечен и устойчив к износу.
Мусоросбросы секционные для разных типов объектов
Секции мусоросброса могут быть различной длины и диаметра, что позволяет использовать их на любых объектах, от малоэтажного строительства до многоэтажных комплексов. Удобная сборно-разборная конструкция мусоросбросов позволяет быстро изменять их конфигурацию в зависимости от текущих нужд проекта. Важным аспектом является прочность и безопасность таких систем, что позволяет им выдерживать большие объемы строительного мусора.
Приобретение качественных мусоросбросов в Алматы позволяет обеспечить безопасность на строительных площадках и ускорить процесс утилизации строительного мусора.






